information
- 所在地
- 佐賀県三養基郡基山町 大字宮浦
- 間取り
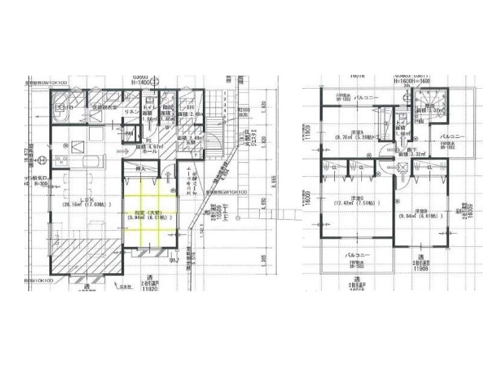
- 4LDK
- 価格
- 2980万円
- 築年月
- 2024/5
- 建物面積
- 32.31坪106.81m²
- 敷地面積
- 54.07坪178.75m²
ローンシミュレーション
Loading...
物件詳細情報
- 価格
-
2980万円
- 物件種別
- 新築戸建
- 間取
-
4LDK
- 所在地
- 佐賀県三養基郡基山町 大字宮浦
- 交通
-
JR鹿児島本線基山駅 徒歩14分
甘木鉄道基山駅 徒歩14分
- 築年月
- 2024/5
- 新築/中古
- 面積
- 32.31坪106.81m²
- 計測方式
- バルコニー
- m²
- 向き
- 建物階数
- 地上2階
- 部屋階数
- 階
- 部屋/区画番号
- 総戸/区画数
- 3
- 建物構造
- 木造
- 敷地全体面積
- 54.07坪178.75m²
- 延べ床面積
- 32.31坪106.81m²
- 間取内容
- 地目
- 宅地
- 用途地域
- 一種低層
- 都市計画
- 市街化区域
- 地勢
- 平坦
- 土地面積
- 178.75m²
- 面積計測方式
- 周辺環境
-
校区(基山小学校 基山中学校 )
- 設備・条件
- 物件番号
- L4002
- 自社物
- 状態
※物件掲載内容と現況に相違がある場合は現況を優先と致します。







★三養基郡基山町大字宮浦【新築一戸建て】全3棟 B号棟 新価格になりました!★
~令和7年1月14日 3080万円→2980万円
~令和6年12月9日 3480万円→3080万円
◆最新の設備が充実しています!
物件の詳細を知りたい方
類似物件を知りたい方
(物件のURLを一緒に送ってください)
LINE相談はこちらから