information
- 所在地
- 福岡県筑紫野市 桜台
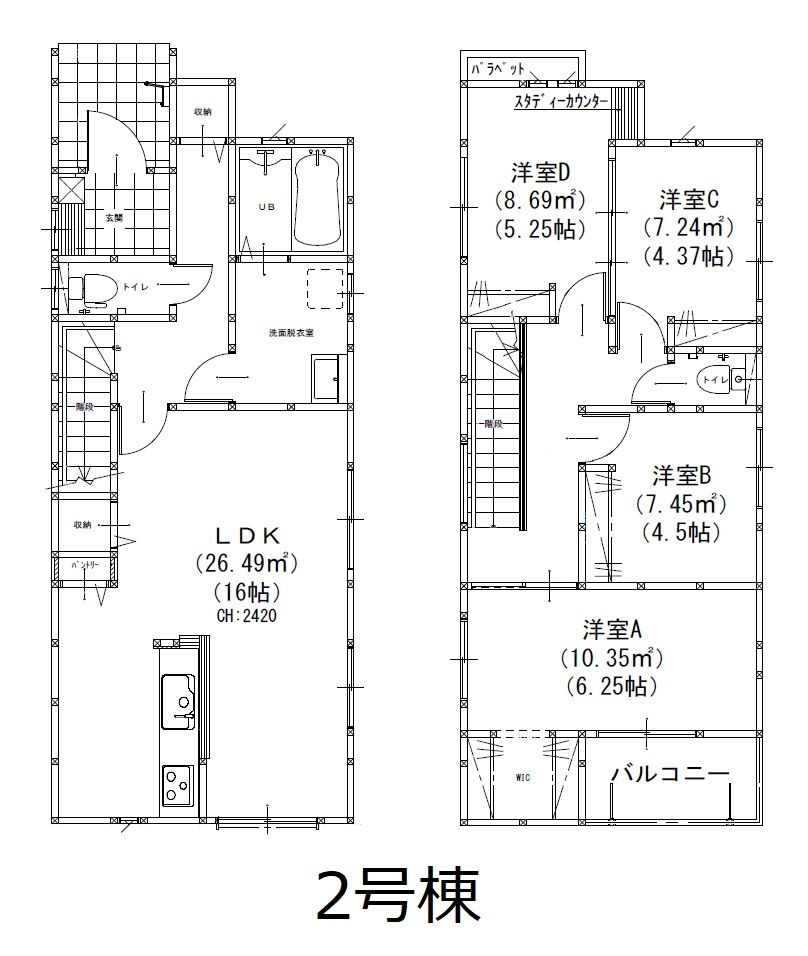
- 間取り
- 4LDK
- 価格
- 2798万円
- 築年月
- 2024/6
- 建物面積
- 29.36坪97.07m²
- 敷地面積
- 34.97坪115.61m²
ローンシミュレーション
Loading...
物件詳細情報
- 価格
-
2798万円
- 物件種別
- 新築戸建
- 間取
-
4LDK
- 所在地
- 福岡県筑紫野市 桜台
- 交通
-
西鉄天神大牟田線桜台駅 徒歩6分
JR鹿児島本線天拝山駅 徒歩25分 「筑紫野中学校入口」バス停 徒歩15分
- 築年月
- 2024/6
- 新築/中古
- 面積
- 29.36坪97.07m²
- 計測方式
- バルコニー
- m²
- 向き
- 建物階数
- 地上2階
- 部屋階数
- 階
- 部屋/区画番号
- 総戸/区画数
- 3
- 建物構造
- 木造
- 敷地全体面積
- 34.97坪115.61m²
- 延べ床面積
- 29.36坪97.07m²
- 間取内容
- 地目
- 宅地
- 用途地域
- 一種住居
- 都市計画
- 市街化区域
- 地勢
- 平坦
- 土地面積
- 115.61m²
- 面積計測方式
- 周辺環境
-
校区(筑紫小学校 筑山中学校 )
- 設備・条件
- プロパンガス 電気 上水道 下水道 側溝 追焚機能 トイレ2箇所 温水洗浄便座 ウォークインクローゼット 床下収納 システムキッチン カウンターキッチン 食器洗浄乾燥機 複層ガラス TVモニタ付きインターホン 24時間換気システム 省エネ給湯器 火災報知機 シャッター(雨戸) 南面バルコニー 浴室に窓 全居室収納 玄関収納 シューズボックス ダウンライト フットライト リビング階段 キッチンに窓
- 物件番号
- B40024
- 自社物
- 状態
※物件掲載内容と現況に相違がある場合は現況を優先と致します。







★筑紫野市桜台1丁目【新築一戸建て】全3棟 2号棟 新価格になりました!★
~令和6年10月22日 2998万円→2798万円
~令和6年10月14日 3098万円→2998万円
~令和6年9月2日 3198万円→3098万円
~令和6年8月18日 3398万円→3198万円
~令和6年7月6日 3599万円→3398万円
◆最新の設備が充実しています!
◆閑静な住宅街で落ち着いた暮らしが出来ますね!
物件の詳細を知りたい方
類似物件を知りたい方
(物件のURLを一緒に送ってください)
LINE相談はこちらから