information
- 所在地
- 福岡県春日市 紅葉ヶ丘西
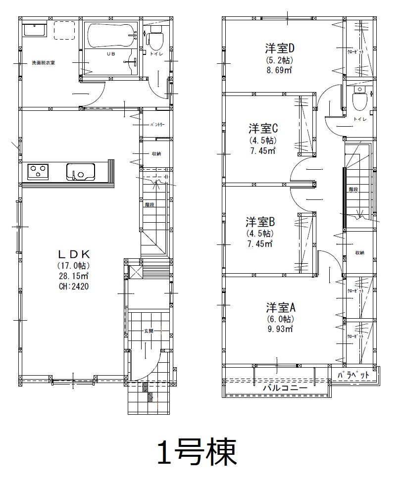
- 間取り
- 4LDK
- 価格
- 2698万円
- 築年月
- 2024/5
- 建物面積
- 29.05坪 96.05m²
- 敷地面積
- 38.72坪128m²
ローンシミュレーション
Loading...
物件詳細情報
- 価格
-
2698万円
- 物件種別
- 新築戸建
- 間取
-
4LDK
- 所在地
- 福岡県春日市 紅葉ヶ丘西
- 交通
-
JR鹿児島本線春日駅 徒歩28分
JR博多南線博多南駅 徒歩32分 「紅葉ケ丘」バス停 徒歩5分
- 築年月
- 2024/5
- 新築/中古
- 面積
- 29.05坪 96.05m²
- 計測方式
- バルコニー
- m²
- 向き
- 建物階数
- 地上2階
- 部屋階数
- 階
- 部屋/区画番号
- 総戸/区画数
- 3
- 建物構造
- 木造
- 敷地全体面積
- 38.72坪128m²
- 延べ床面積
- 29.05坪 96.05m²
- 間取内容
- 地目
- 宅地
- 用途地域
- 一種中高層
- 都市計画
- 市街化区域
- 地勢
- 平坦
- 土地面積
- 128m²
- 面積計測方式
- 周辺環境
-
校区(春日南小学校 春日南中学校 )
- 設備・条件
- 都市ガス 電気 上水道 下水道 側溝 追焚機能 トイレ2箇所 温水洗浄便座 床下収納 システムキッチン カウンターキッチン シャンプードレッサー 浴室乾燥機 複層ガラス TVモニタ付きインターホン 24時間換気システム 省エネ給湯器 火災報知機 シャッター(雨戸) 南面バルコニー 浴室に窓 浴室暖房 全居室収納 玄関収納 ダウンライト フットライト リビング階段 キッチンに窓
- 物件番号
- E4425
- 自社物
- 状態
※物件掲載内容と現況に相違がある場合は現況を優先と致します。







★春日市紅葉ヶ丘西6丁目【新築一戸建て】全3棟 1号棟 新価格になりました!★
~令和6年12月27日 2798万円→2698万円
~令和6年11月5日 2998万円→2798万円
~令和6年9月9日 3198万円→2998万円
~令和6年7月16日 3498万円→3198万円
~令和6年6月4日 3598万円→3498万円
~令和6年5月14日 3798万円→3598万円
◆最新の設備が充実しています!
物件の詳細を知りたい方
類似物件を知りたい方
(物件のURLを一緒に送ってください)
LINE相談はこちらから